English
Verhuurd:Anna Blamansingel 207, 1102 SW Amsterdam - Foto
Verhuurd
+14

Anna Blamansingel 207 1102 SW Amsterdam

  • Appartement
  • 2 kamers
  • 1 slaapkamer(s)
  • 1 badkamer
  • Bouwjaar 2006
  • 50 m² gebruiksoppervlakte
  • Gemeubileerd
  • A+ Energielabel A+

Beschrijving

LET OP: BEZICHTIGINGEN KUNNEN ALLEEN ONLINE AANGEVRAAGD WORDEN!
LET OP: TYPE B CONTRACT - MAXIMAAL 12 MAANDEN - ALLEEN BESCHIKBAAR VOOR INTERNATIONALE STUDENTEN

In het centrum van Amsterdam Zuid Oost aan de Anna Blamansingel is dit volledig gemeubileerde 2-kamer appartement voor verhuur beschikbaar gekomen.
Het appartementen complex beschikt over een lift, waarmee het appartement gelegen op de 5e verdieping te bereiken is.

De Anna Blamansingel gelegen aan een gracht is vernoemd naar een schrijfster Anna Blaman uit de eerste helft vorige eeuw. Het appartement is op slechts vijf minuten lopen van het winkelcentrum op de Amsterdamse Poort en minder dan tien minuten van station Bijlmer Arena en de Arena Boulevard. De Amsterdams Poort beschikt over alle winkels die nodig zijn voor de dagelijkse noden maar heeft tevens veel (kleding) winkels en speciaal zaken met eten vanuit alle windstreken. De Arena boulevard is een groot entertainment centrum met natuurlijk de Johan Cruyff arena, AFAS live, Pathé Arena Bioscoop en de Ziggo Dome, daarnaast zijn er legio restaurants en cafés' Het openbaar vervoer is goed geregeld, slechts vijf minuten gelegen van metro station Strandvliet, slechts 10 minuten van Bijlmer Arena NS station en Busstation. Met de auto is de Gooiseweg snel te bereiken naar de stad of de andere kant via de A9 naar de richtingen Utrecht en Almere.

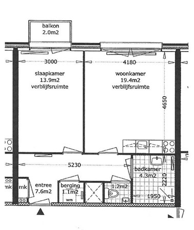
Indeling:
De nette gemeenschappelijke entree geeft toegang tot de lift en de woning op de vijfde verdieping.
Appartement: hal, apart toilet, washok met wasmachine/droger, lichte woonkamer met moderne open keuken (v.v. diverse inbouw apparatuur), ruime slaapkamer met toegang tot het balkon (prachtig uitzicht), badkamer met ligbad, douche em wastafel.

Extra:
- volledig gemeubileerd
- 1 ruime slaapkamer
- aparte berging
- totaal ca 50m2

Kaart

Kenmerken

Overdracht

Referentienummer
01345
Huurprijs
€ 1.300,- per maand (gemeubileerd)
Borg
€ 2.250,-
Inrichting
Ja
Inrichting
Gemeubileerd
Status
Verhuurd
Aanvaarding
In overleg
Beschikbaar vanaf
Zondag 15 maart 2026
Beschikbaar tot
Woensdag 31 maart 2027
Aangeboden sinds
Woensdag 4 maart 2026
Laatste wijziging
Dinsdag 24 maart 2026

Bouw

Type object
Appartement, tussenverdieping
Woonlaag
5e woonlaag
Soort bouw
Bestaande bouw
Bouwperiode
2006
Keurmerken
Energie prestatie advies
Isolatievormen
HR-glas

Oppervlaktes en inhoud

Woonoppervlakte
50 m²
Inhoud
125 m³
Oppervlakte externe bergruimte
3 m²
Oppervlakte gebouwgebonden buitenruimte
2 m²

Indeling

Aantal bouwlagen
1
Aantal kamers
2 (waarvan 1 slaapkamer)
Aantal badkamers
1 (en 1 apart toilet)

Locatie

Ligging
Aan rustige weg
Aan water
Dichtbij openbaar vervoer
In woonwijk
Nabij school
Nabij snelweg
Vrij uitzicht

Energieverbruik

Energielabel
A+

Uitrusting

Warm water
CV-ketel
Verwarmingssysteem
Stadsverwarming
Heeft een balkon
Ja
Heeft kabel-tv
Ja
Heeft een lift
Ja
Heeft schuur/berging
Ja

Media

Video

Plattegronden